Björnrike Terrassvägen 39

Ski in/ski out i natursköna Björnrike

Lägenhet
4 rok
95.4 kvm
4 475 000 kr

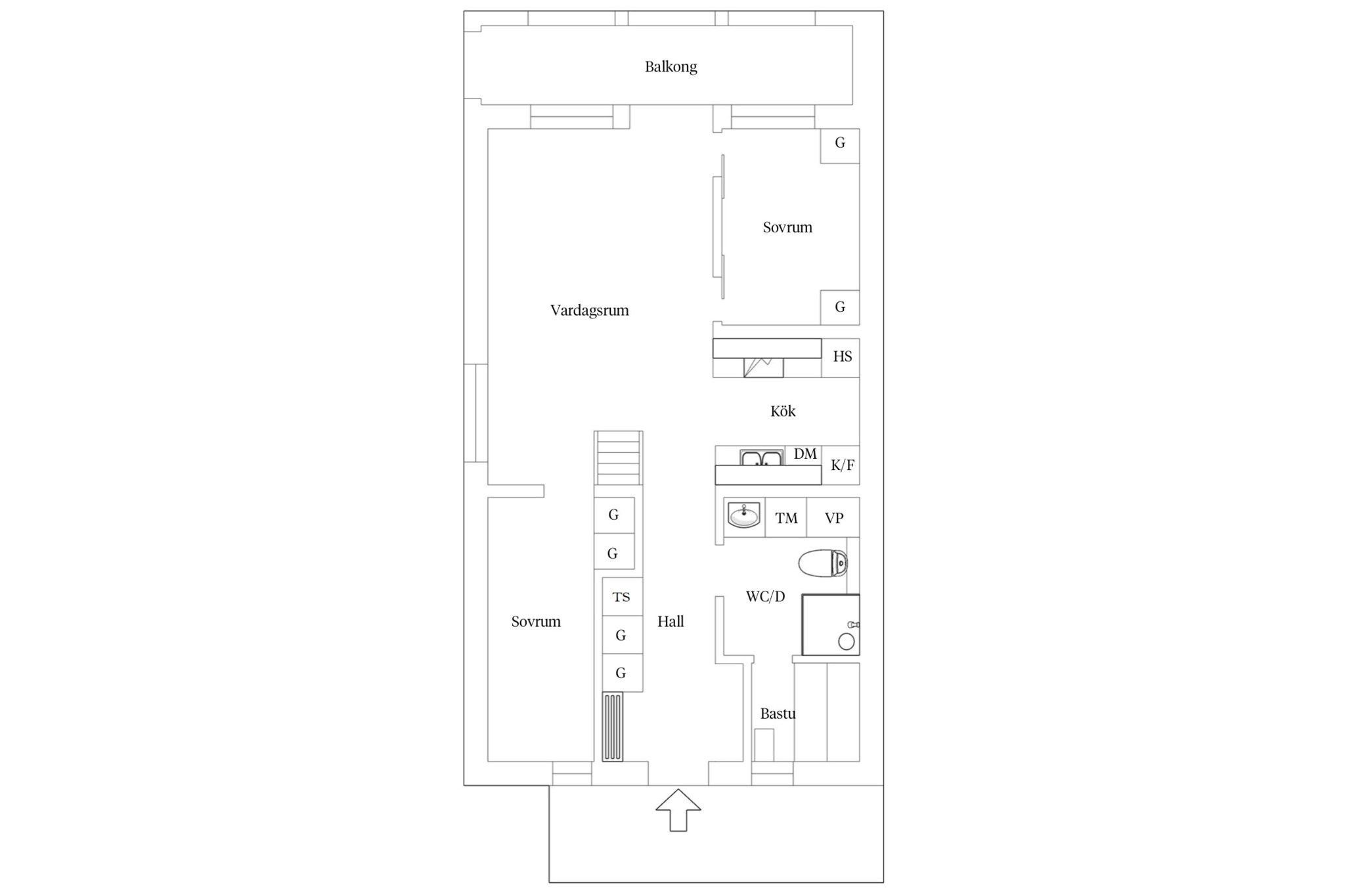
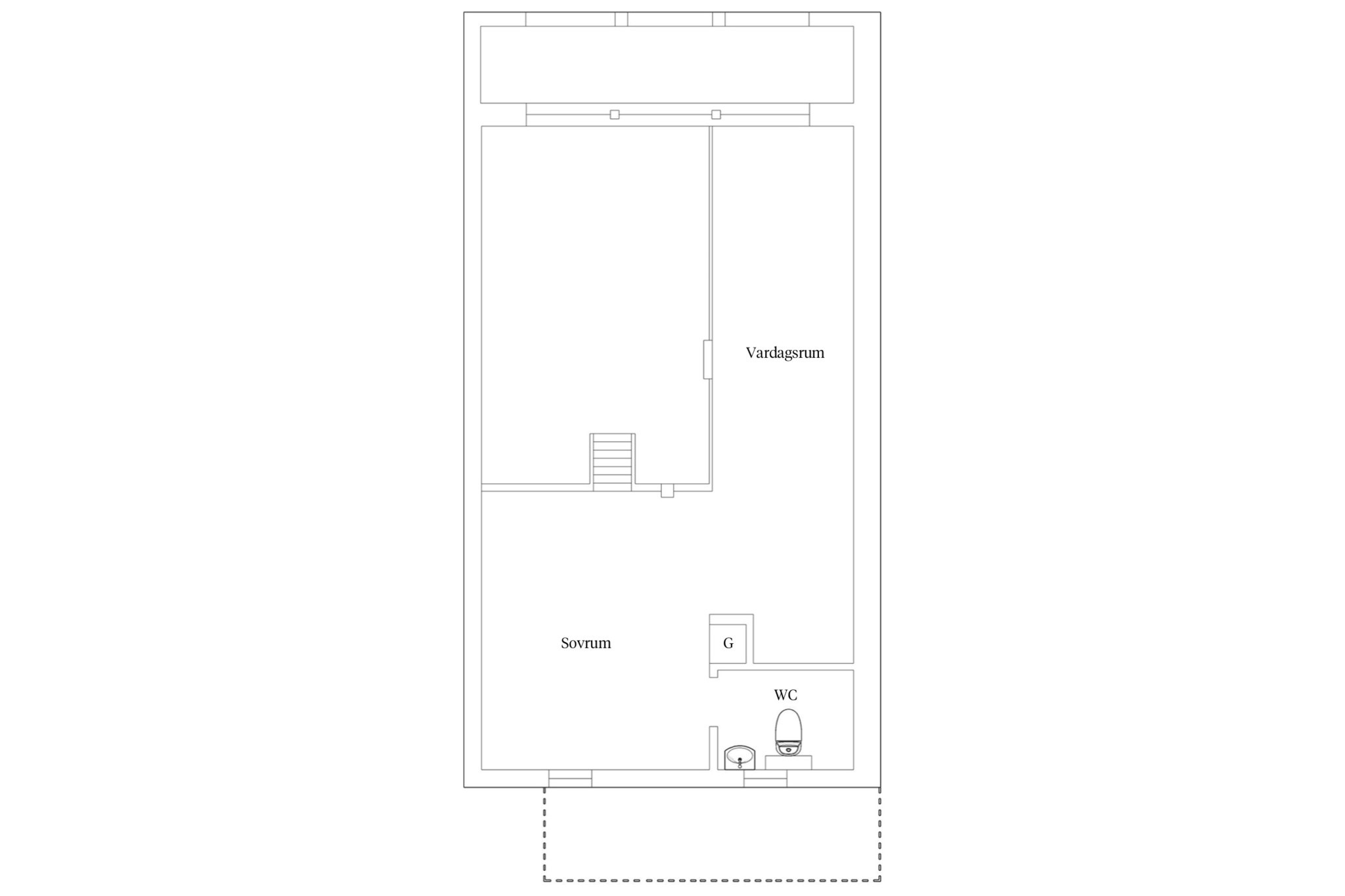
På Terrassvägen 39 i Björnrike bor du med förstklassig ski in/ski out då lägenheten ligger mitt i backen. Bostaden erbjuder en vidunderlig utsikt mot Sonfjället, två sovrum plus loft med totalt åtta riktiga bäddplatser, en social planlösning mellan kök och matplats samt två helkaklade badrum varav det ena med bastu. Loftet ger extra plats för umgänge när familjen hälsar på. Ett fantastiskt boende högt beläget bland Björnrikes trädtoppar som måste upplevas på plats!

I Björnrike hittar du Sveriges längsta expresslift, Grizzly Express, som tar dig hela vägen upp till toppen av fjället. Härifrån kan du välja mellan olika nedfarter i alla svårighetsgrader och längder. I barnområdet Björnvallen hittar du Valles minipark, en skogsbana och enklare skidbackar. I området finns även längdspår med förbindelse till Vemdalsskalet och SkiStarshop Concept Store ligger vid Björnrike Torg. Har du någon gång velat uppleva en trolsk regnskog i fjällen så hittar du den i Björnrike. Här vandrar man längs med kristallklart fjällvatten och en fantastisk natur. Under vandringen kommer du skymta herr älg och hans vänner. Se till att utmana dina djurkunskaper i frågeslingan som finns längs vägen!

Bostaden ligger på ett förmånligt uthyrningsavtal via Skistar under säsongen 23/24 med möjligheten till bra uthyrningsintäkter.

Välkommen att kontakta ansvarig mäklare för frågor eller visningsanmälan!

Andreas Palmqvist Ansvarig mäklare Ring mig Ställ en fråga
Olivia Yng Extra kontaktperson Ring mig Ställ en fråga
Andreas Palmqvist Ansvarig mäklare Ring mig Ställ en fråga
Olivia Yng Extra kontaktperson Ring mig Ställ en fråga