Vemdalsskalet Rödrävsvägen 10

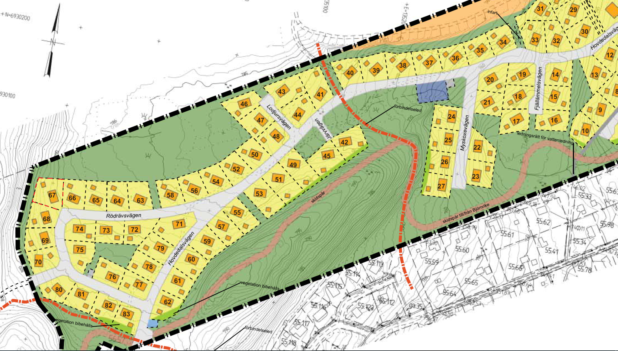
Tomt 67 är belägen precis intill skidleden uppe på höjd

Tomt
3 500 000 kr

Nu ges möjlighet att förvärva en riktigt fin hörntomt intill skidleden som i folkmun kallas för "Pensionären". Hovdedalens vision är bli Vemdalsskalets premium område. Målsättningen har hela tiden varit att skapa en röd tråd genom hela området med kvalitativa hus och sammanhängande exteriörer. Markägarna har ett samarbete med Överbygg, Forsgrens Timmerhus, Residens Bygg och Östanbäck Timmerhus som levererar husen till dessa tomter. Du som kund väljer vem du vill bygga med.

Området erbjuder troligen Vemdalens bästa skidläge. Här får du ski-in/ski-out till barnbacken och hela skidsystemet - nära till afterski på Högfjällshotellet, butiker, restauranger, uteliv och natur. Med Skalets Express kommer du upp i höjd så att du når mitten av Hovdedalens tomter. Åker man vidare högst upp på toppen når man de övre tomterna via skidleden som i folkmun kallas "Pensionären". Utöver det finns också längdskidåkningen med förbindelsespår till Björnrike i direkt anslutning till området.

Tomterna får bebyggas med friliggande hus eller parhus, det vill säga maximalt två hushåll samt ett uthus/förråd. Bygg arean, byggnadernas markyta, får uppgå till 180 kvm, varav uthus/förråd högst får utgöra 40 kvm. Huvudbyggnaden får byggas i två plan och uthus/förråd i ett plan. Se detaljplan och planbeskrivning under "Bostadsfakta" för mer detaljerade förutsättningar.

Forsgrens Timmerhus, Residens Bygg, Överbygg Sverige och Östanbäck Timmerhus står alla för hög kvalité och har lång erfarenhet av att bygga bostäder i fjällen.

I priset ingår en anslutning för VA, el och fiber till tomtgräns.

Joakim Westerlind
Joakim Westerlind Ansvarig mäklare Ställ en fråga
Joakim Westerlind
Joakim Westerlind Ansvarig mäklare Ställ en fråga