Vemdalsskalet Tysta stigen 36F
Fantastiskt söderläge på Vemdalsskalet med direkt anslutning till skidåkningen
Lägenhet
4 rok
72 kvm
2 750 000 kr
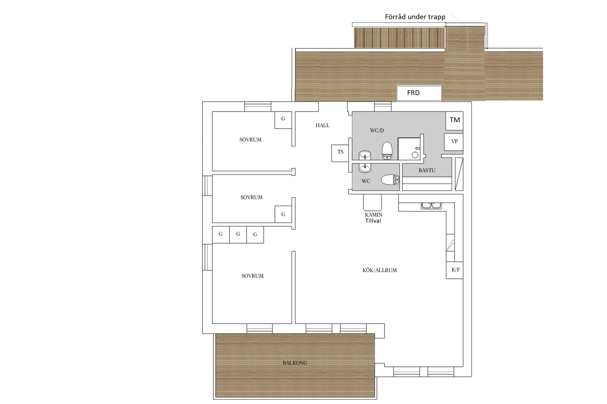
Välkommen till denna välplanerade och stilrena topp lägenhet. Här bor du högst upp i huset med totalt 72 kvm fördelat på tre rymliga sovrum, ett ljust och öppet allrum samt badrum och bastu. Lägenheten har en modern och genomtänkt planlösning som skapar en ljus och luftig känsla tack vare det fina ljusinsläppet.
Du bor med gångavstånd till skidbackar, liftar, restaurang och Skistarshop. Det är fin ski-in till området via Nääsbacken och gångavstånd till ski-out via Väst Express som tar dig hela vägen upp i Vemdalsskalets skidsystem. En kort promenad på ca 5 minuter från lägenheten finns det även fina längdspår i olika sträckor.

Visning
Kontakta ansvarig mäklare för bokning av personlig visning.

Visning
Kontakta ansvarig mäklare för bokning av personlig visning.