Vemdalsskalet Lindgrens väg 16

Lägenhet med magnifik utsikt över Vemdalsskalets fjälltoppar

Lägenhet
4 rok
75.9 kvm
4 250 000 kr

Välkommen till en smakfullt inredd bostad om ca 75 kvm som präglas av storslagen utsikt över Vemdalsskalets fjälltoppar. Läget på Lindgrens väg bjuder på en rofylld fjällmiljö samtidigt som du med en kort promenad når Skalets Torgs puls med restauranger, afterskier och butiker.

Till backen tar du enklast skidorna på axeln och promenerar över landsvägen till Skalet Express. Hem från skidbacken tar du dig smidigt på skidor från Hildingsbacke via Skalsterrassens bostadsområde. Från Vemdalsskalets spårcentral slingrar sig längdspåren upp och passerar Lindgrens väg där du smidigt kliver på spåret nära lägenheten. Väl ute på spåret väljer du om du vill ta lederna upp på fjället eller en kvällsrunda i elljusspårets strålkastarljus omgiven av ett snöigt vinterlandskap. Sommartid når du enkelt till vandringslederna upp på fjället.

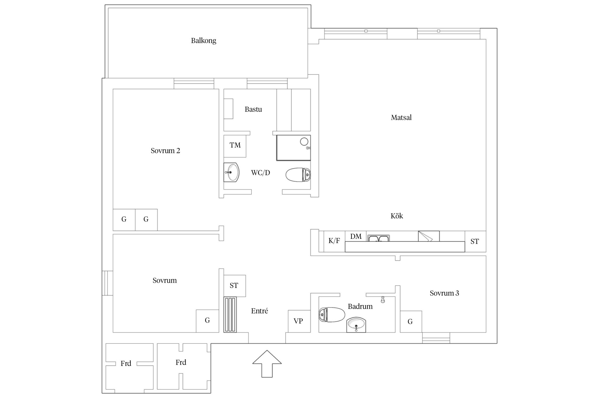
Bostaden går i harmoniska färgtoner med träpanel på väggarna och har genomgående vattenburen golvvärme. Interiört finns tre sovrum, två badrum med dusch och en hall med gott om plats för förvaring. Den öppna planlösningen mellan kök och vardagsrum gör det möjligt att njuta av en sprakande brasa i kaminen samtidigt som middagen tillagas efter en härlig dag i skidbacken.

Sommartid erbjuder destination Vemdalen en rad friluftsaktiviteter som passar både stora och små. Här kan du uppleva vandringsleder som slingrar sig genom fjällandskapen, njuta av den friska luften och upptäcka gömda pärlor längs vägen. Du kan även besöka vattenfall, fiska, cykla, eller spela en runda golf med fjällen som bakgrund.

Bostaden har inte något gällande uthyrningsavtal vilket ger dig som köpare möjlighet att nyttja lägenheten som det passar dig.

Malin Ullberg
Malin Ullberg Ansvarig mäklare Ställ en fråga

Visning

2026-02-18 14:00 - 14:30
Välkommen på visning! Anmälan krävs.
2026-02-20 09:30 - 10:00
Välkommen på visning! Anmälan krävs.
2026-02-21 15:00 - 15:30
Välkommen på visning! Anmälan krävs.
2026-02-27 13:30 - 14:00
Välkommen på visning! Anmälan krävs.
2026-02-28 10:30 - 11:00
Välkommen på visning! Anmälan krävs.
Malin Ullberg
Malin Ullberg Ansvarig mäklare Ställ en fråga

Visning

2026-02-18 14:00 - 14:30
Välkommen på visning! Anmälan krävs.
2026-02-20 09:30 - 10:00
Välkommen på visning! Anmälan krävs.
2026-02-21 15:00 - 15:30
Välkommen på visning! Anmälan krävs.
2026-02-27 13:30 - 14:00
Välkommen på visning! Anmälan krävs.
2026-02-28 10:30 - 11:00
Välkommen på visning! Anmälan krävs.