Parhus på Vargen, Vemdalsskalet med bra skoter- och skidläge
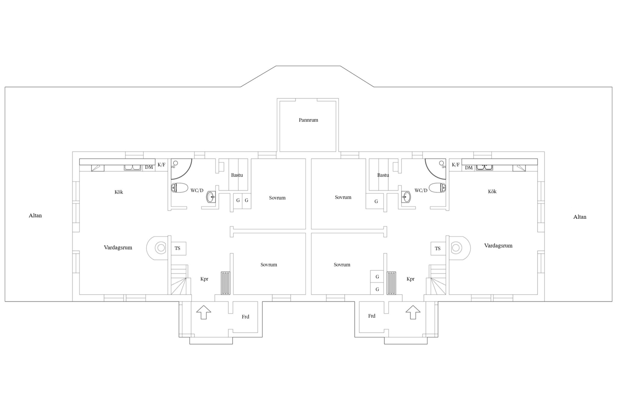
Välkommen till detta parhus som består av två funktionella och smakfullt inredda lägenheter. Varje lägenhet erbjuder fyra sovrum och en öppen planlösning som förenar kök, matplats och vardagsrum. För extra mysfaktor finns här även en sprakande braskamin. Den stora uteplatsen ger dig möjlighet att njuta av utsikten över snöklädda fjällbjörkar.
Läget är optimalt med bara ett par hundra meter till närmsta skoter- och längdspår som leder dig raka vägen upp på fjället. Vargen har även närhet till Vemdalsskalets gedigna alpina skidområde och det är endast en kort promenad till Skalets torg med restauranger, afterski och butiker.
Under sommaren och hösten erbjuder destination Vemdalen en rad friluftsaktiviteter som passar både stora och små. Här kan du uppleva vandringsleder som slingrar sig genom fjällandskapen, njuta av den friska luften och upptäcka gömda pärlor längs vägen. Du kan även besöka vattenfall, fiska, cykla, eller spela en runda golf med fjällen som bakgrund.
Båda lägenheterna ligger på uthyrningsavtal via Stugknuten.

Visning
