Lilla Panoramavägen 3D

Etagelägenhet på 156 kvm med sober känsla i Klövsjö

Lägenhet
7 rok
156 kvm
4 900 000 kr

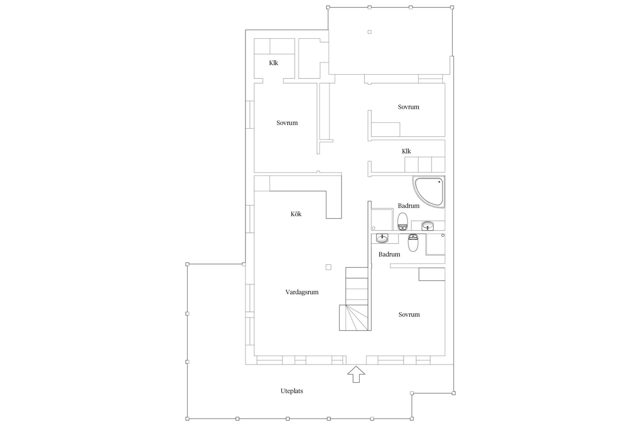
Klövsjö Panorama är ett sobert fjällboende i timmer där bostaden är om hela 156 kvm, fördelat på två generösa plan och sju rum – ett hem där lodgekänslan sitter i väggarna och komfort möter karaktär. Här bor du med Klövsjös välrenommerade skidområde precis runt knuten.

Det sociala entréplanet bjuder in till samvaro med öppen planlösning mellan kök, matplats och vardagsrum, där den stenklädda öppna spisen skapar både värme och fjällkänsla. Totalt finns det 12 bäddplatser, tre badrum, bastu och ett extra vardagsrum ger gott om plats för både familj och gäster.

Den moderna bekvämligheten är påtaglig med bergvärme som genererar vattenburen golvvärme – perfekt när det finns lite kalla tår efter en dag i naturen. Helt unikt för just denna bostadsrättsförening är det uppvärmda varmgaraget i källaren. Här får du två bilplatser med laddare för elbil som tillhör bostaden, ett rymligt källarförråd och vallarum. Det finns också ett separat skidförråd i anslutning till entrén.

På hotellet Klövsjö Fjäll finns restaurang, afterski och sportbutik. Området erbjuder härlig utförsåkning, längdspår uppe på Klövsjötoppen och i närheten av bostaden finns också skoterleder. Det finns också ett elljusspår på 5,5 km som startar antingen vid hotellet eller vid en parkering i stugområdet.

Bostaden överlåtes möblerad och utrustad med reservation för ett skåp i köket, tavlor, dekorationer, personliga tillhörigheter och stylingprodukter. Det finns för närvarande inget uthyrningsavtal men du som köpare kan teckna avtal om du önskar.

Joakim Westerlind
Joakim Westerlind Ansvarig mäklare Ställ en fråga
Malin Ullberg Extra kontaktperson Ställ en fråga
Joakim Westerlind
Joakim Westerlind Ansvarig mäklare Ställ en fråga
Malin Ullberg Extra kontaktperson Ställ en fråga