Vemdalsskalet Klockarfjällsvägen 53D

Brf Nääsbacken 1 är ett projekt med äkta ski-in/ski-out till den alpina skidåkningen

Lägenhet
5 rok
79.4 kvm
3 900 000 kr

Försäljning av lägenheterna i Brf Nääsbacken 1 har nu startat - ett nyproduktionsprojekt med 16st bostäder som ska uppföras i direkt anslutning till Nääsbacken på Klockarfjället. Markarbetena är utförda och betongplattorna för byggnaderna är gjutna. Just nu pågår tecknade av bindande Förhandsavtal mot intygsgiven kostnadskalkyl.

Från bostäderna glider du enkelt in och ut på skidor och åker bekvämt via Väst Express i hela Vemdalsskalets skidsystem. Passet erbjuder mysig skogsåkning och härlig piståkning där det också finns en minipark för de yngsta. På restaurang Passet kan du njuta av skidåkarlunch, afterski, restaurang och event. Du kan även glida in på restaurang Toppen för en härlig skidåkarlunch eller på restaurang Pläjset nere vid landsvägen.

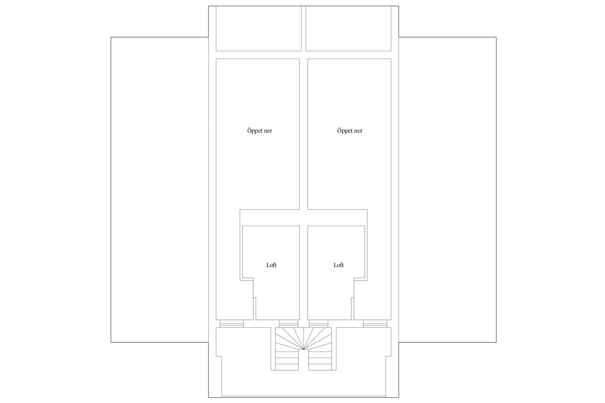
Bostäderna är på ca 80 kvm och har en modern arkitektur och en utmärkt planlösning. Hela fem rum och kök varav fyra sovrum, två badrum med dusch, bastu, en rejäl skidåkarhall och en stor och härlig sociala yta i framkant av bostäderna. På de övre lägenheterna har man dessutom lyft ut takhöjden som skapar rymd och även en extra funktion med ett loft om ca 6 kvm. Köket är från Marbodal och vitvarorna från Electrolux. Tvättmaskin, torktumlare, torkskåp och garderober ingår i köpet.

Tillträde med inflyttning är beräknat till Q1 2026. Projektören bearbetar ett komplett möbelförslag i samråd med Möbelmästarna i Vemdalen.

Joakim Westerlind
Joakim Westerlind Ansvarig mäklare Ställ en fråga
Joakim Westerlind
Joakim Westerlind Ansvarig mäklare Ställ en fråga