Hemtrevligt boende med centralt läge i Delsbo!
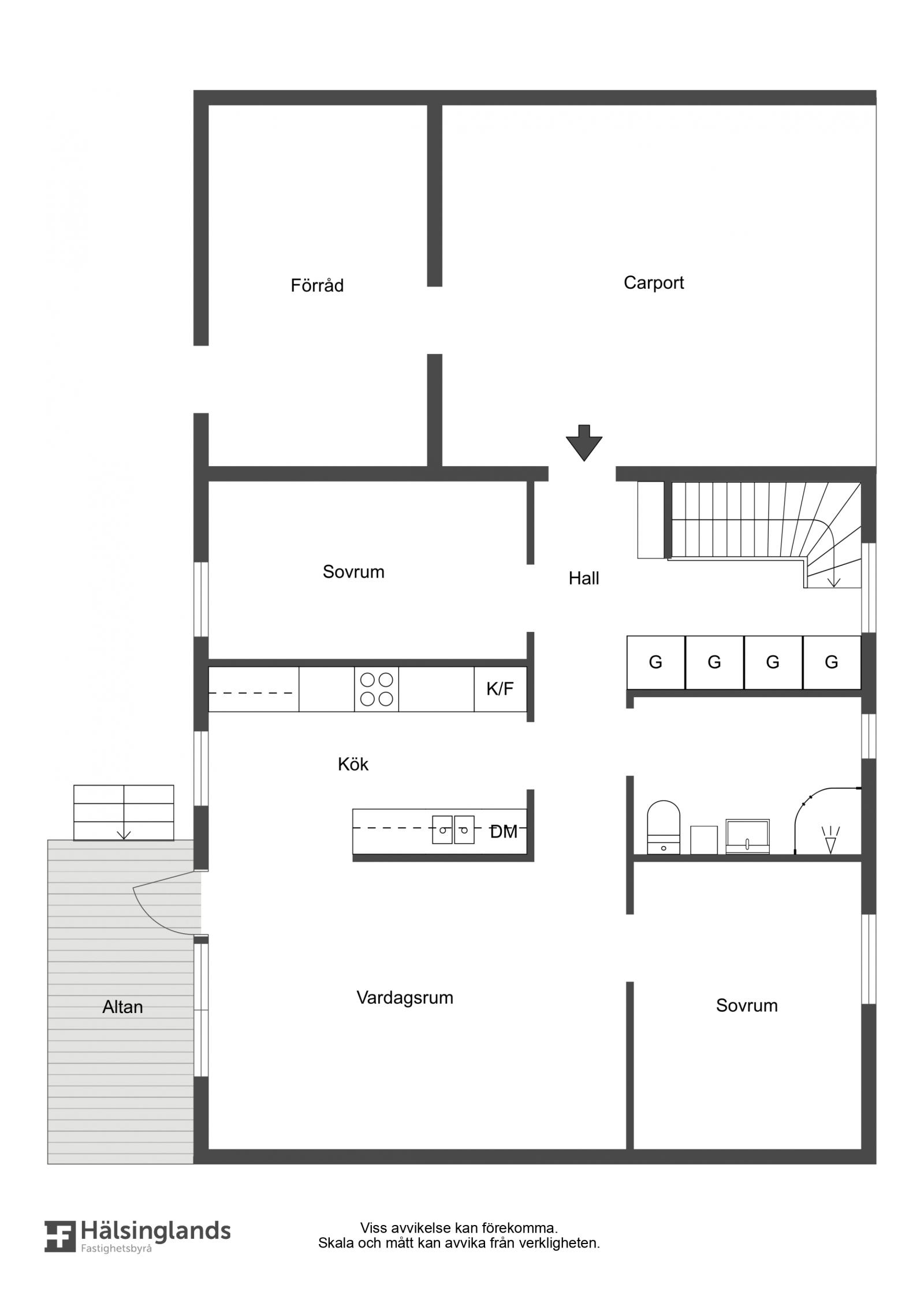
Välkommen till detta hemtrevliga parhus på populära Tånggatan i Delsbo med trädgård i soligt sydvästläge! Ett bekvämt boende där entréplan erbjuder två sovrum, vardagsrum med utgång till altan, kök och rymligt badrum med dusch. På källarplan finns ytterligare ett sovrum och en gillestuga samt tvättstuga, gästtoalett och förvaringsutrymmen. Uppvärmning sker smidigt med fjärrvärme, kommunalt VA och fiber finns.
Den lilla trådgården bjuder på ett soligt läge med både äppelträd och bärbuskar och till bilen finns carport med anslutande förråd. Här har du nära till allt som Delsbo har att erbjuda - ett bekvämt gång- och cykelavstånd till förskola, F9-skola, apotek, hälsocentral, affärer, matbutiker, restauranger, busstation, idrottsanläggning och badplatser.
Välkommen med din intresseanmälan redan idag!
Rumsbeskrivning
ENTRÉPLAN
Hall
Välkommen in i bostadens hall som leder dig vidare till entréplanets alla rum och trapp ned till källarplan. Här finns gott om plats för hallmöbler, klädförvaring och avhängningsmöjligheter.
Kök
Köket är delvis öppet mot vardagsrummet och är utrustat med diskmaskin, kombinerad kyl/frys, flertalet skåp och lådor för bra förvaring, spis med häll och ugn, fläkt, dubbeldiskho och bra bänkyta för mat och bak. Fönster mot trädgården i sydväst.
Vardagsrum
Ljust och rymligt vardagsrum intill bostadens kök med utgång till uteplats som leder dig vidare till trädgård i perfekt solläge.
Sovrum 1
Till höger vid entrén ligger detta sovrum med fönster mot sydväst.
Sovrum 2
Intill vardagsrummet finns bostadens andra sovrum med fönster mot nordöst.
Badrum
Rymligt badrum (renoverat 2016) som har dusch med infällbara duschdörrar, spegelskåp, handfat, wc samt skåp för förvaring.
KÄLLARPLAN
Gillestuga
I källarplan finns en rymlig gillestuga som passar perfekt som extra vardagsrum, gästrum, lekrum för barnen eller som hobbyrum. Ett praktiskt rum som enkelt kan inredas efter behov.
Sovrum 3
Ett tredje sovrum finns i källarplan perfekt som sovrum/gästrum/barnrum/kontor.
Utöver gillestuga och sovrum erbjuder källarplan också tvättstuga, gästtoalett och förrådsutrymmen.
Välkommen till Delsbo
På Tånggatan 43 bor du med ett centralt läge på en lugn och familjevänlig gata nära Delsbo´s centrala utbud. Gångavståndet till förskola, F9 skola, busstation, ridskola, apotek, vårdcentral, affärer och restauranger gör detta läge extra attraktivt!
Delsbo är en levande bygd som kombinerar närhet till natur, kultur och ett engagerat lokalsamhälle. Omgiven av de vackra Dellensjöarna, böljande landskap och blånande berg bjuder Dellenbygden på storslagen natur året om med möjligheter till bad, fiske, paddling, ridning, skidåkning och härligt friluftsliv.
Här möts det traditionella och det moderna – Delsbo är kanske mest känt för sin rika folkmusiktradition och årliga spelmansstämmor men är också en växande bygd med företagande, föreningsliv och service som gör vardagen enkel.
Med sin närhet till Hudiksvall och goda kommunikationer vidare ut i landet är Delsbo en perfekt plats för dig som vill leva nära naturen utan att kompromissa med tillgänglighet. Du har också närhet till både Järvsöbacken och Hassela Ski Resort för fartfyllda skidäventyr.
Välkommen till Dellenbygden!
Kontakta mäklare Malin Bergman för mer info om försäljningen!

Visning
Kontakta mäklaren för visning.

Visning
Kontakta mäklaren för visning.

