Charmig mindre central villa med garage och carport – nära förskola, skola och kommunikationer.
Perfekt för den lilla familjen eller paret, välkommen hem till Fridhem. Denna villa är ett riktigt guldkorn för dig som söker ett lättskött boende med gott om förvaringsutrymmen och närhet till allt du behöver i vardagen. Här finns garage och carport, perfekt för både bil och hobbyprojekt, samt en rymlig källare med goda förrådsmöjligheter. Huset har en trivsam planlösning med ljusa rum och en lagom stor tomt som ger plats för både lek och odling.
Läget är svårslaget, med förskola, skola, lekplatser och kollektivtrafik inom bekvämt gångavstånd blir vardagen enkel och smidig.
Bostaden
Denna charmiga villa erbjuder ett bekvämt och funktionellt boende i ett lugnt område med närhet till både skola, förskola, buss och tåg. Här får du ett hem med potential, gott om förvaring och fina ytor för både vardag och fritid.
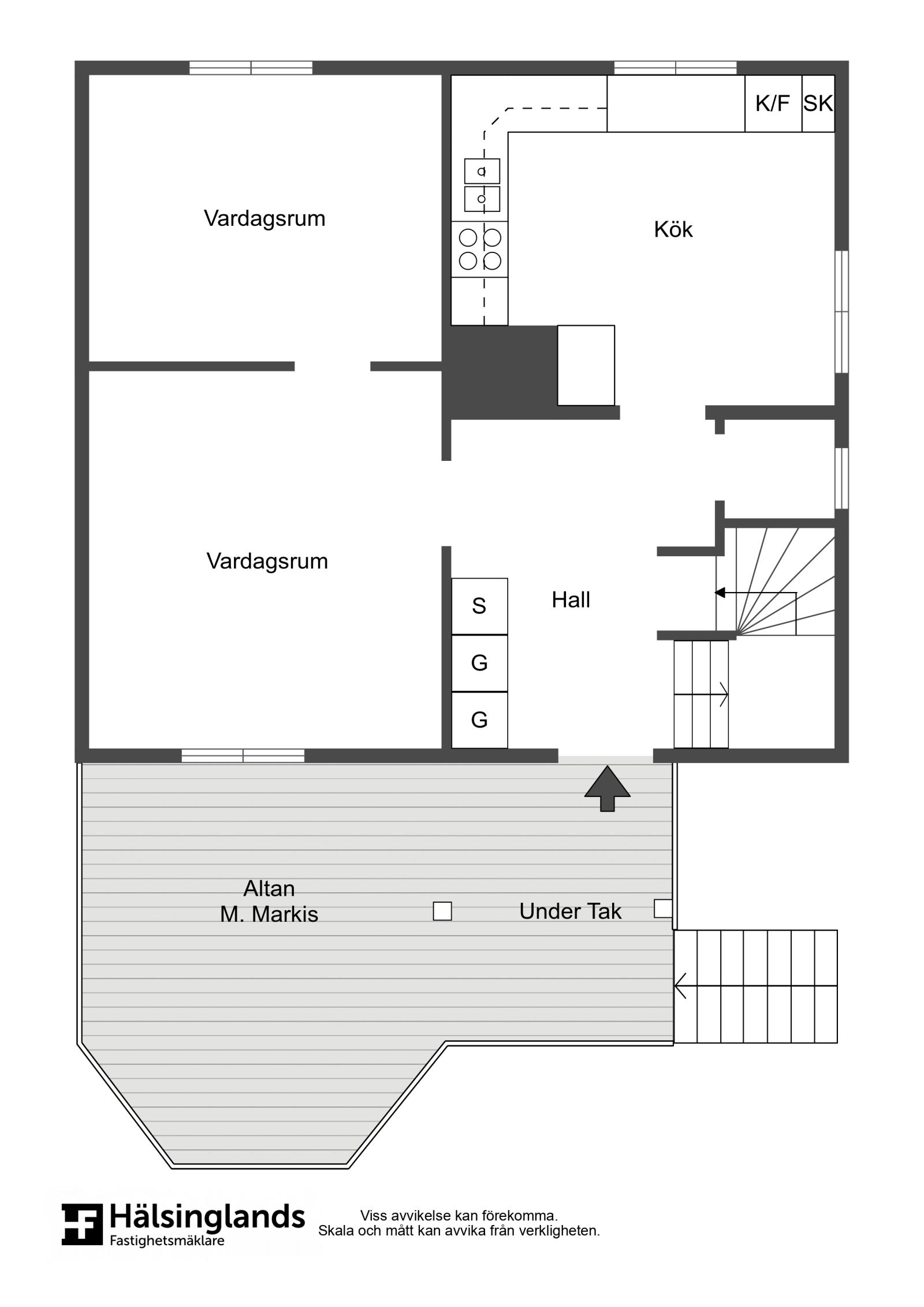
Entréplan
På entréplanet möts du av ett ljust och luftigt kök med goda arbetsytor och plats för matbord. Här finns även ett separat matrum som passar perfekt för middagar med familj och vänner. Vardagsrummet ligger intill och här finns möjlighet att öppna upp för ett större sällskapsrum. En renoverad gästtoalett finns också på detta plan.
Övre plan
En trappa upp finns en möblerbar hall, två sovrum med kattvindar samt ytterligare en renoverad WC. Här finns gott om plats för både familj och gäster.
Källarplan
Källaren är utrustad med dusch, bastu med golvvärme – perfekt för avkoppling efter en lång dag. Här finns även flera förrådsutrymmen som ger goda möjligheter till förvaring, hobbyverksamhet eller verkstad.
Tomt och byggnader
Tomten är generös med plats för både lek, odling och avkoppling. Ett garage finns med plats för bil och verktyg, samt ett separat förråd för trädgårdsredskap och fritidsutrustning.
Med gångavstånd till skola, dagis och kollektivtrafik är detta ett boende som passar både barnfamiljer och dig som vill ha ett praktiskt och trivsamt hem med allt inom räckhåll.
Se budhistorik
| Bud | Budgivare | Datum |
|---|---|---|
| 1 800 000 kr | Budgivare 1 | 2026-04-08 16:53 |

Visning
Kontakta mäklaren för visning.
Se budhistorik
| Bud | Budgivare | Datum |
|---|---|---|
| 1 800 000 kr | Budgivare 1 | 2026-04-08 16:53 |

Visning
Kontakta mäklaren för visning.