Välkommen till en trivsam villa strax utanför Tallåsen – en plats där lugnet, naturen och livet på landet möts i perfekt harmoni. Här bor du med skogen som närmaste granne, men ändå med bekvämt avstånd till samhällets service och kommunikationer.
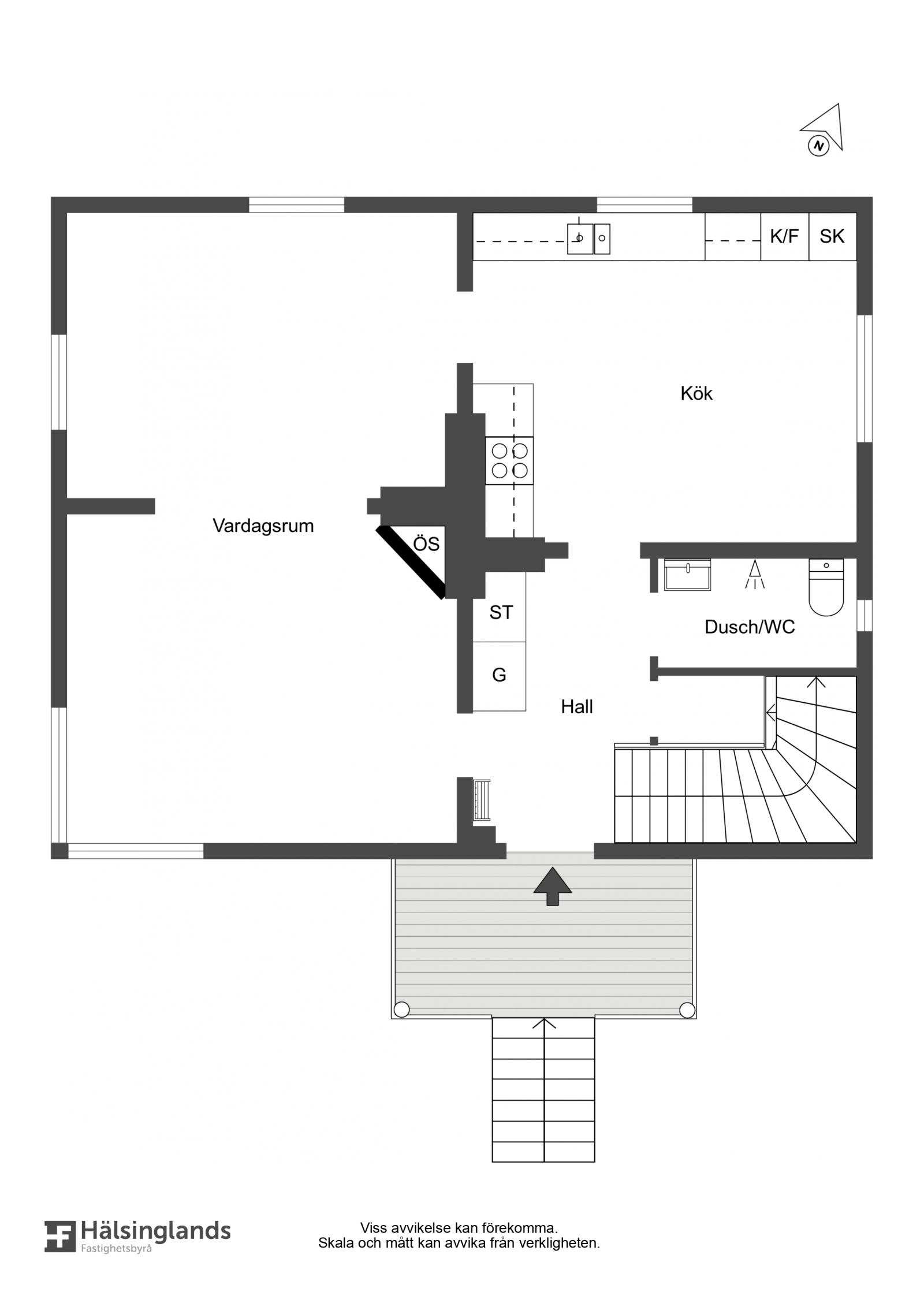
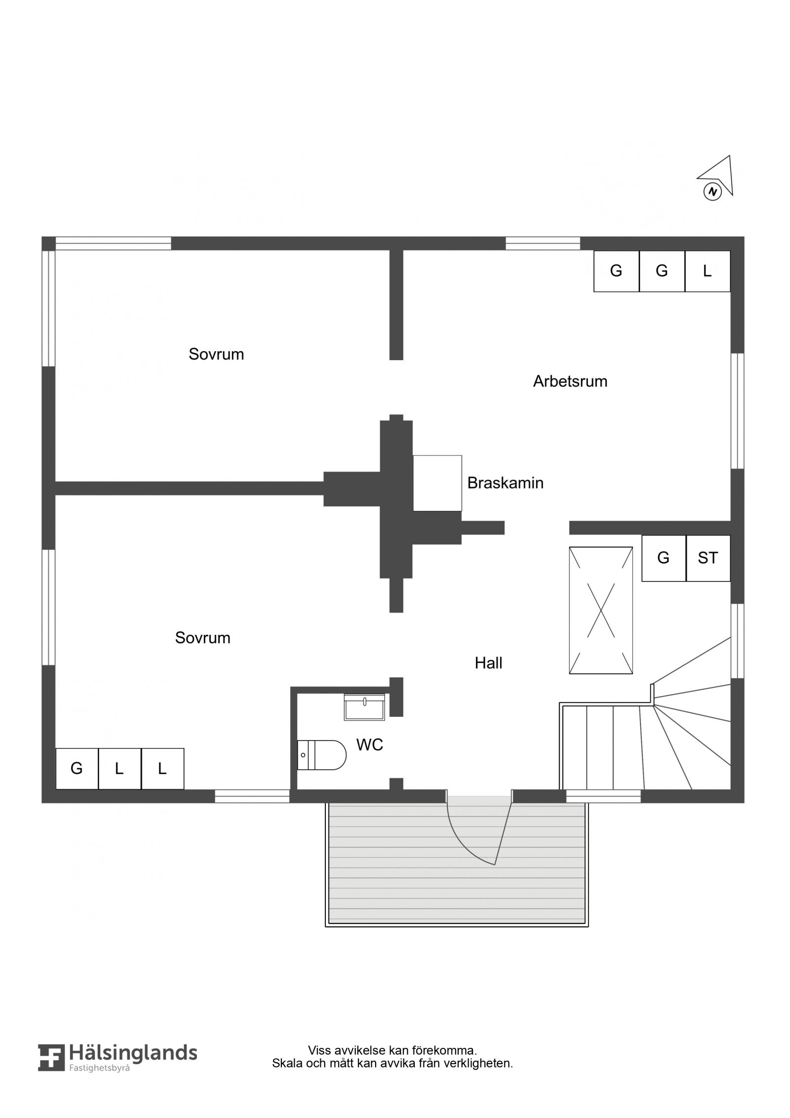
Den rymliga villan rymmer 5 rum och kök, och erbjuder gott om plats för den större familjen eller för dig som vill ha utrymme för både boende och hobby. Huset håller en bra standard och är utrustat med alla nödvändiga bekvämligheter för ett bekvämt och trivsamt boende.
På tomten finns flera praktiska byggnader – uthus, lador och förråd – som ger fina möjligheter till förvaring, verkstad, eller varför inte plats för djur och gårdsliv. För dig med hästintresse finns här gott om yta för hästhållning och möjlighet att skapa den perfekta hästgården i natursköna omgivningar.
Fastigheten erbjuder en härlig kombination av lantlig frihet och funktionell vardagskomfort. Med naturen alldeles inpå knuten finns möjlighet till svamp- och bärplockning, skogspromenader och en rofylld tillvaro året runt.
Detta är en kommande försäljning, så håll utkik – snart har du chansen att förvärva denna trevliga gård med möjligheter utöver det vanliga.
Byggnadsbeskrivning
SMÅHUSENHET, HELÅRSBOSTAD FÖR 1-2 FAMILJER (220) (220)
Byggnad, totalt värde: 686 000 kr
Mark, totalt värde: 190 000 kr ().
Summavärde: 876 000 kr
Taxeringsår: 2021
Byggår: 1948
Värdeår: 1948
Servitut
Avtalsservitut, Last
1, 1981-03-18
Avtalsservitut avloppsledning mm, Förmån
21-IM5-81/878 - 1
Officialservitut väg, Last
21-LJJ-1291 - 1, 1937-09-17
Avtalsservitut vattentäkt mm, Last
21-IM5-81/879 - 1
Officialservitut väg, Last
21-79:80 - 2, 1979-02-12
Gemensamhetsanläggningar
Gemensamhetsanläggning LJUSDAL BÄCKEBO GA:1
GA1

Visning
Kontakta mäklaren för visning.

Visning
Kontakta mäklaren för visning.


