Det vackra huset i Älgered - med plats för många. BESIKTAD
Mitt i den lilla idylliska byn hittar vi Älgered 408, en ståtlig och imponerande bostad som tagits väl omhand under åren. Här finns utrymmen för din verksamhet, ditt företag eller för ditt privata boende.
Hallen imponerar med sin generositet, köket med de härliga, sociala matlagningsytorna, matsalen med det enorma matbordet och alla vackra rum med sina kakelugnar, höga fönster och fina trägolv.
Här finns möjlighet att driva verksamhet, bo i kollektiv, generationsboende eller för helt privat bruk.
Bostaden är besiktad med doldafel-försäkring.
Bostaden måste upplevas på plats, så varmt välkommen att ta kontakt med mäklaren för mer information och visning.
Bostadsbeskrivning
I vackraste Hälsingland hittar vi den generösa bostad som genom åren fungerat både som kollektiv och privatbostad. Här finns badplats på gångavstånd, möjlighet till vandring, cykling och längdskidåkning samt ca 20 minuter till Hassela skidcenter.
Boytan mäter dryga 500 kvm med en biyta om ca 160, dessa är fördelade på 18 rok. Flertalet badrum och toaletter ger en funktionell och bra lösning.
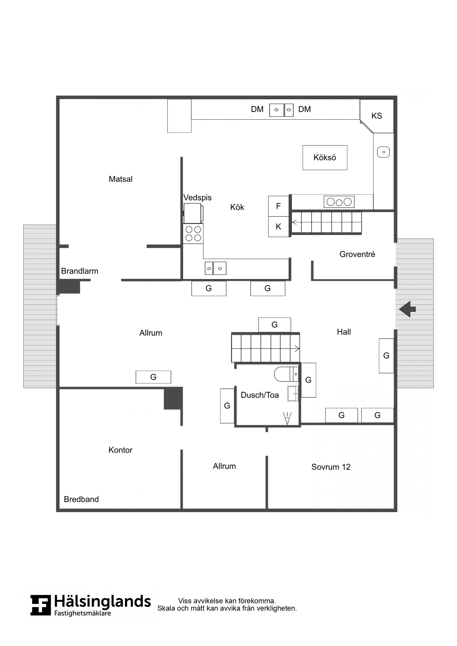
På entréplanet har vi den generösa hallen med gott om plats för avhängning. Rakt fram öppnar sig hallen till ett allrum med utgång till den pampiga verandan och vackra trädgården.
På höger sida har vi köket vilket är stort nog för verksamhet. Här finns stekbord och andra storköksmaskiner - de flesta vitvaror byttes 2020. Kylen är dessutom mycket energisnål och lämpad för storhushåll. Här finns även en vedspis och utgång till framsidan.
Matsalen intill är imponerande - här ryms hela familjen vid högtiderna.
På detta plan har vi även två vackra sovrum, varav det ena idag fungerar som kontor. Badrum med wc, dusch och handfat.
En trappa upp har vi biblioteket vilket fördelar sovrum och badrum för ett funktionellt boende. Här har vi också den vackra salen med genuina timmerväggar, kakelugn och utgång till den övre delen av verandan. Även i sovrummen har vi besiktade och fullt fungerande kakelugnar.
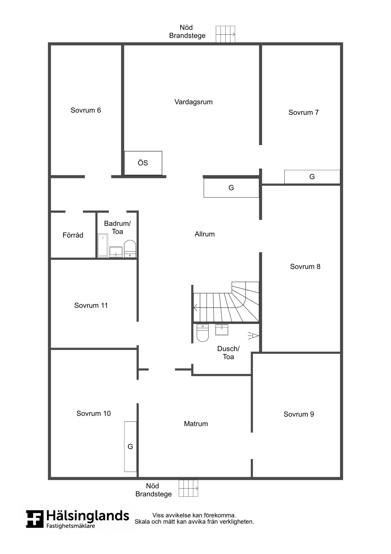
Högst upp fyller vi på med fler sovrum (se planritning), allrum och tv-rum. Badrum med dusch, wc och handfat.
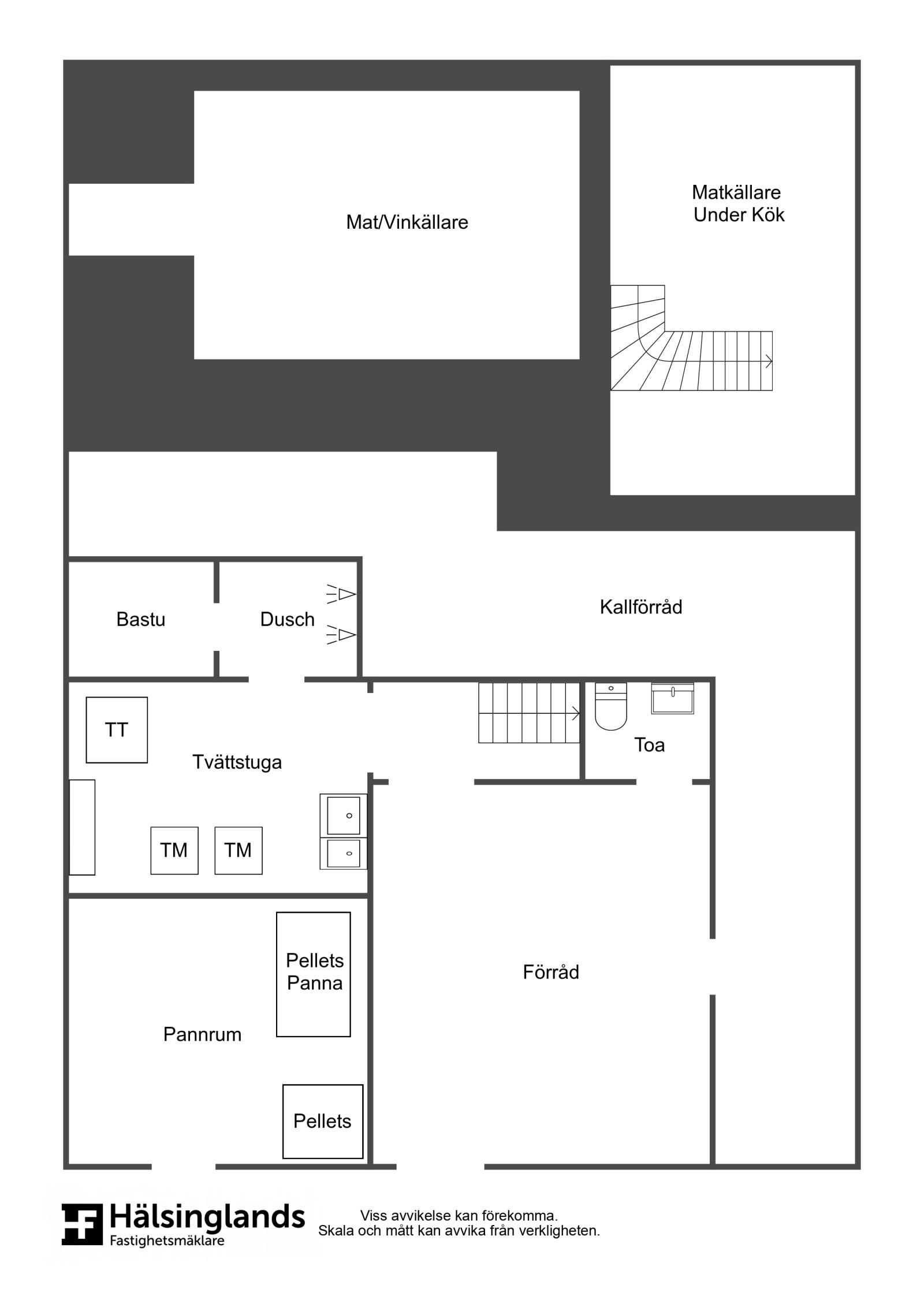
I källarplanet finns ett hobbyrum samt bastu, dusch, tvättstuga mm. Fina utrymmen för förvaring vilka kan nyttjas efter behov.
Invändigt har löpande renoveringar gjorts under åren. Fasaden målades 2014, pelletspannan installerades 2018 (uppdaterades 2022) och stammarna byttes för ca 10 år sedan. En värmeväxlare har installerats på vinden. Fiber är indraget.
(Lekstugan ingår ej i köpet).
Här finns flera utrymmen att ta del av, så ta kontakt med mäklaren och få mer information och boka tid för visning. Bostaden är besiktad med tillhörande doldafel-försäkring, för både din och säljarens trygghet.
Varmt välkommen!

Visning
Kontakta mäklaren för visning.

Visning
Kontakta mäklaren för visning.



