3:a med två egna uteplatser och garageplats som ingår i avgiften, detta är ett hem att trivas i.
Bostadsrätt i ett plan på populära och barnvänliga Sandvalla. Nu finns denna trevliga och välplanerade lägenhet om 3 rum och kök, med två uteplatser, en inglasad och en öppen altan - så att huskänslan infinner sig direkt. Välkommen hem till Finkvägen - där lägenheten är lättillgänglig för liten som stor och snabbt tillträde är möjligt om man önskar.
Bostaden
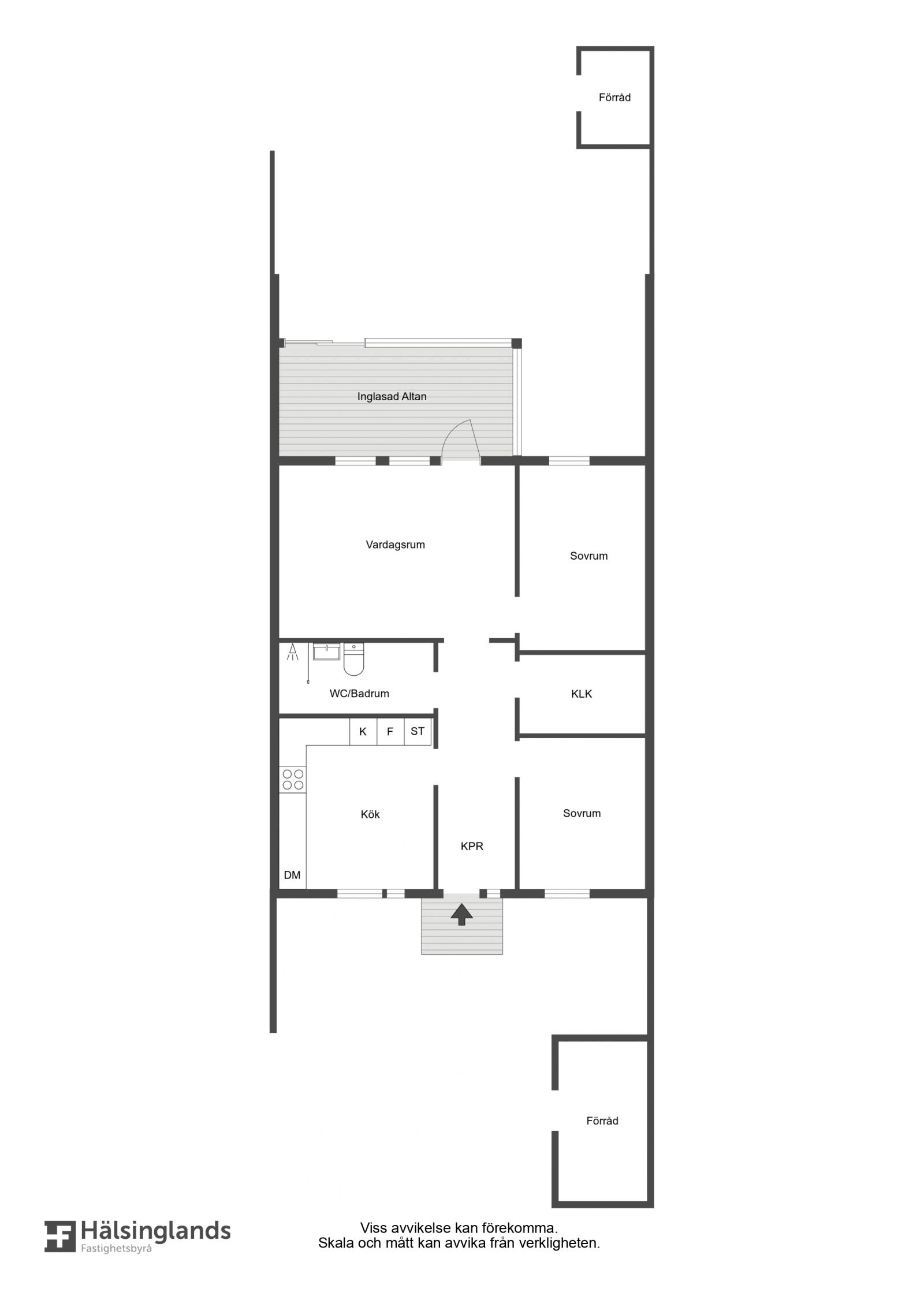
Finkvägen 10 välkomnar in dig i en hall med plats för avhängning och en stor rymlig klädkammare. Det första sovrummet ligger intill hallen och här får du plats med både säng och garderober om du önskar. Det ljusa köket som renoverades vid inflytt och har gott om skåp och är utrustat med kyl, frys och spis. Badrummet är renoverat med våtrumsmatta och våtrumstapet. Det andra sovrummet är större och har utsikt mot den skyddade baksidan.
Vardagsrummet är ljust och rymligt och har utgång till den stora inglasade altanen och den mindre trädgården och förrådsboden. Här kan du odla om du vill eller bara ha ett bekvämt boende. Bostaden har två soliga och generösa uteplatser som förlänger vardagen utomhus – perfekt för både frukost i morgonsolen och grillkvällar med vänner. Den på baksidan är inglasad, ej isolerad och på golvet ligger ett ombonande laminatgolv. Den på framsidan är öppen och har ett trallgolv.
Invändigt möts du av en genomtänkt planlösning som passar både den lilla familjen och paret som söker extra utrymme. Garage ingår i avgiften.
Här bor du i ett lugnt och omtyckt område med närhet till förskola, skola, lekplatser och grönområden – idealiskt för barnfamiljen. Goda kommunikationer och närhet till service gör vardagen enkel och bekväm.
Välkommen hem till Sandvalla – där trivsel möter funktion!
Allmän beskrivning
ALLMÄNT
HSB Brf Sandvalla ligger trivsamt belägen mitt i Sandvalla, ett lugnt och barnvänligt område såväl nära naturen som stan. I föreningen finns totalt 82 lägenheter, 55 st parkeringsplatser som hyrs separat samt gästparkering.
GEMENSAMMA UTRYMMEN
Som medlem har du tillgång till gemensam tvättstuga samt gemensamhetslokal. Här finns även ett övernattningsrum som medlemmarna kan hyra för 100 kr/dygn. I samma hus finns också en bastu.
Till varje lägenhet ingår en garageplats i länga, men för dig som vill ha ytterligare en plats går det att hyra en för 100-150 kr/mån. Dessa har separat kö.
TV OCH BREDBAND
Kollektivt avtal med Telia, IP telefoni, kabel-TV och bredband om 100/100 ingår i avgiften.
UTFÖRDA REPARATIONER
2007 Ommålning av fönster
2007 Renovering av tvättstuga (maskinerna 2012)
2011 tilläggsisolerades vindarna
2010 byttes ventilationen
2014 (föreg 2008) Ventilationskontroll (OVK)
2015-2017 Målning av fasad
2019 Renovering ytskikt av bastu och nya möbler
2020 Planerad renovering av uthyrningsrum
2024 Installerades solceller, panelerna har nu tagits i bruk och är placerade på garagelängor vid Finkvägen. Anläggningen producerar el för förbrukning i kvartersgården, garagelängor, motorvärmare och laddning av elbilar. Överskott av el säljs ut på elnätet.
Samtidigt installerades platser för laddning av el/hybrid-bilar, det finns plats för laddning av 4 bilar och stolparna är placerade vid infarten till gästparkeringen vid Finkvägen. Boende som önskar nyttja laddplatserna tecknar eget abonnemang för detta.

Visning
Kontakta mäklaren för visning.

Visning
Kontakta mäklaren för visning.