Citynära radhusidyll vid havet
Välkommen till Kattvikskajen och detta stilrena bostadsrättsradhus om 101 kvm med 4 rum och kök. Här bor du med havets glittrande vatten utanför dörren och stadens puls inom någon minuts avstånd. Ett hem som förenar det bästa av två världar – lugnet vid vattnet och närheten till Hudiksvalls citykärna.
Bostadsbeskrivning
BOSTADEN
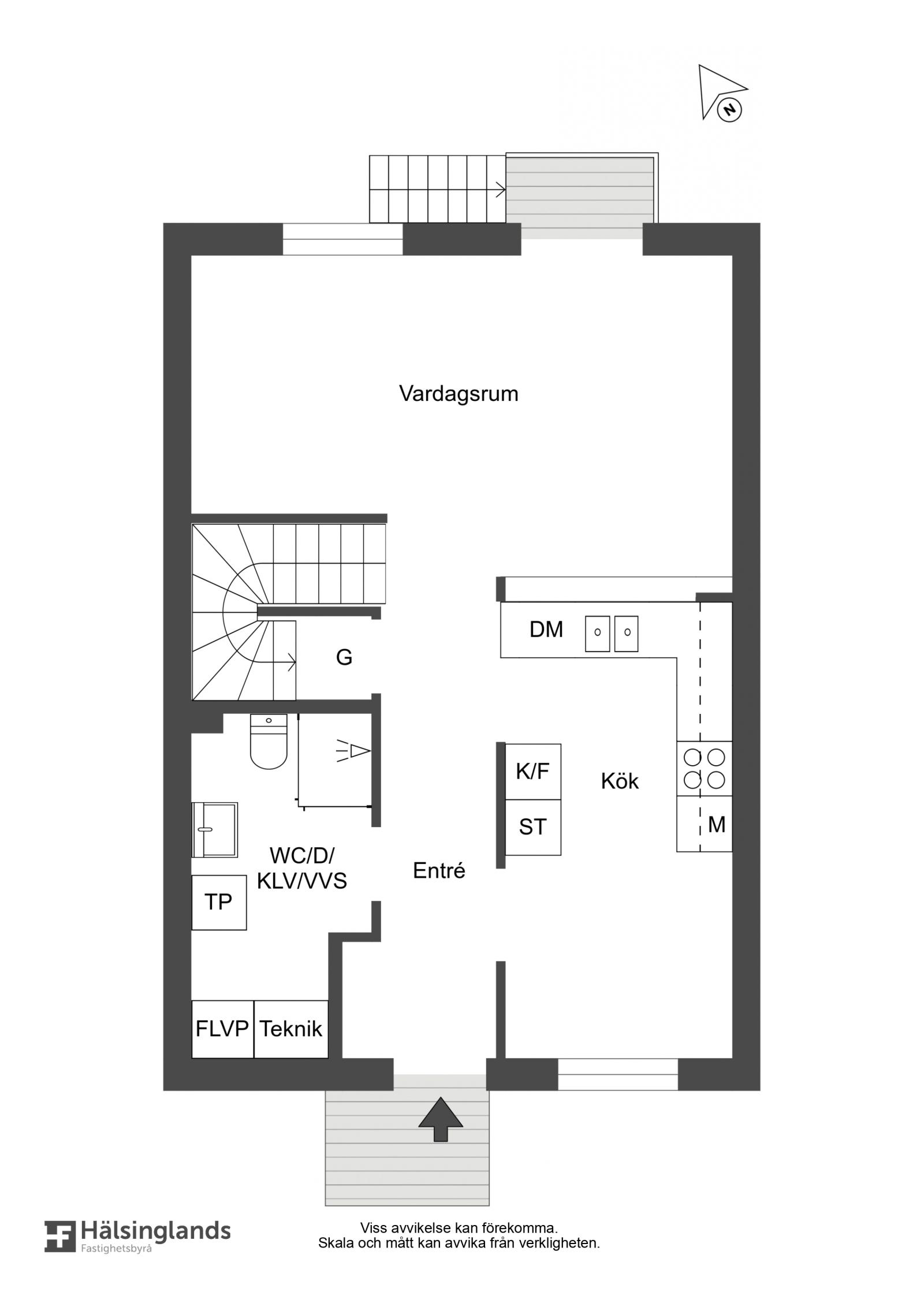
Redan vid entrén möts du av en ljus och genomtänkt miljö med fina materialval och harmoniska färger. Hela entréplanet präglas av öppenhet, rymd och en naturlig kontakt mellan rummen.
Köket är modernt och elegant med integrerad kyl, frys och diskmaskin. Här finns även ugn och induktionshäll samt gott om förvaring. Den delvis öppna planlösningen mot vardagsrummet skapar ett naturligt flöde och ger ett vackert ljusinsläpp.
Vardagsrummet är inbjudande med stora fönsterpartier som släpper in dagsljuset och en altandörr. Här finns plats för både soffgrupp och matbord, och känslan är både modern och ombonad.
På entréplanet finns också ett stilfullt badrum med dusch, golvvärme, handdukstork, infällda spotlights, tvättmaskin och torktumlare.
Under trappan finns ett praktiskt förvaringsutrymme som även passar utmärkt som plats för ett litet skrivbord eller arbetsplats
ÖVRE PLAN
En trappa upp möts du av hemmets lugna och privata del. Här finns ett ljust och trivsamt allrum som fungerar perfekt som familjens samlingsplats, men som även kan delas av för den som önskar ytterligare ett sovrum eller arbetsrum. Tre välplanerade sovrum i varierande storlek ger plats för hela familjen och skapar en praktisk och flexibel boendemiljö.I anslutning till det största sovrummet finns ett rymligt garderobsrum som ger gott om plats för kläder och förvaring.
Även på detta plan finns ett elegant badrum med dusch, golvvärme och handdukstork – stilrent utformat med samma omsorg som resten av hemmet.
Den genomgående färgskalan är harmonisk och enhetlig, och materialvalen är varsamt utvalda för att skapa en varm och inbjudande känsla. Här bor du i ett hem där kvalitet och komfort möts i varje detalj.
UTEMILJÖ
Uteplatsen vetter mot innergården och erbjuder en skyddad plats för morgonkaffe eller grillkvällar. Här finns även en liten plätt för odling, perfekt för dig som vill ha egna kryddor eller blommor. Trots det centrala läget råder här ett behagligt lugn. På gården finns en praktisk förrådsbod och plats för cyklar och mopeder utanför entrén.
Om Brf Panorama
Brf Panorama är ett Svanenmärkt bostadsprojekt med totalt 63 bostadsrätter – från kompakta ettor till generösa fyror och radhus. Föreningen erbjuder garage under gården, grönskande innergård med utegym och entréer både mot gården och strandpromenaden.
Här bor du mitt på Kattvikskajen, Hudiksvalls nya havsnära stadsdel, bara några minuter från centrum. En plats där du kan promenera längs vattnet, ta ett dopp på sommaren eller slå dig ner på någon av stadens restauranger – allt inom bekvämt avstånd.

Visning
Kontakta mäklaren för visning.

Visning
Kontakta mäklaren för visning.

