Vemdalsskalet Myrbärsstigen 39

Exlusivt fritidshem ritat av Gert Wingårdh på Vemdalssporten!

Fritidshus
5 rok
160 + 15 kvm
9 000 000 kr

Bjurfors presenterar ett spektakulärt och exklusivt fjällboende om 160 kvm, signerat arkitekt Gert Wingårdh – stilfullt klätt i ståtlig furu och skapat för att smälta samman med fjällmiljön. Arkitekturen är genomtänkt in i minsta detalj, med omsorgsfullt utvalda naturmaterial, platsbyggda lösningar och en designfilosofi där landskapet alltid står i centrum. De stora fönsterpartierna med djupa, inbjudande nischer låter naturen bli till konst inne i hemmet och förstärker den lugna, skandinaviska identiteten.

Här finns flera sovrum i varierande storlek: rymliga rum med plats för dubbelsäng, mindre rum med platsbyggd våningssäng samt ytterligare sovplatser på det generösa loftet. På övre plan når fönstren ända ner till golvet, vilket skapar en luftig känsla och en nära kontakt med fjället utanför.

Huset ligger högt och vackert med generösa sociala ytor och en stor takterrass som bjuder på vidsträckta vyer över Vemdalens fjällvärld. Efter en dag i backarna samlas familj och vänner i det stora vardagsrummet där takhöjden, braskaminen och materialens enhetlighet skapar en varm, exklusiv och nästan sakral atmosfär.

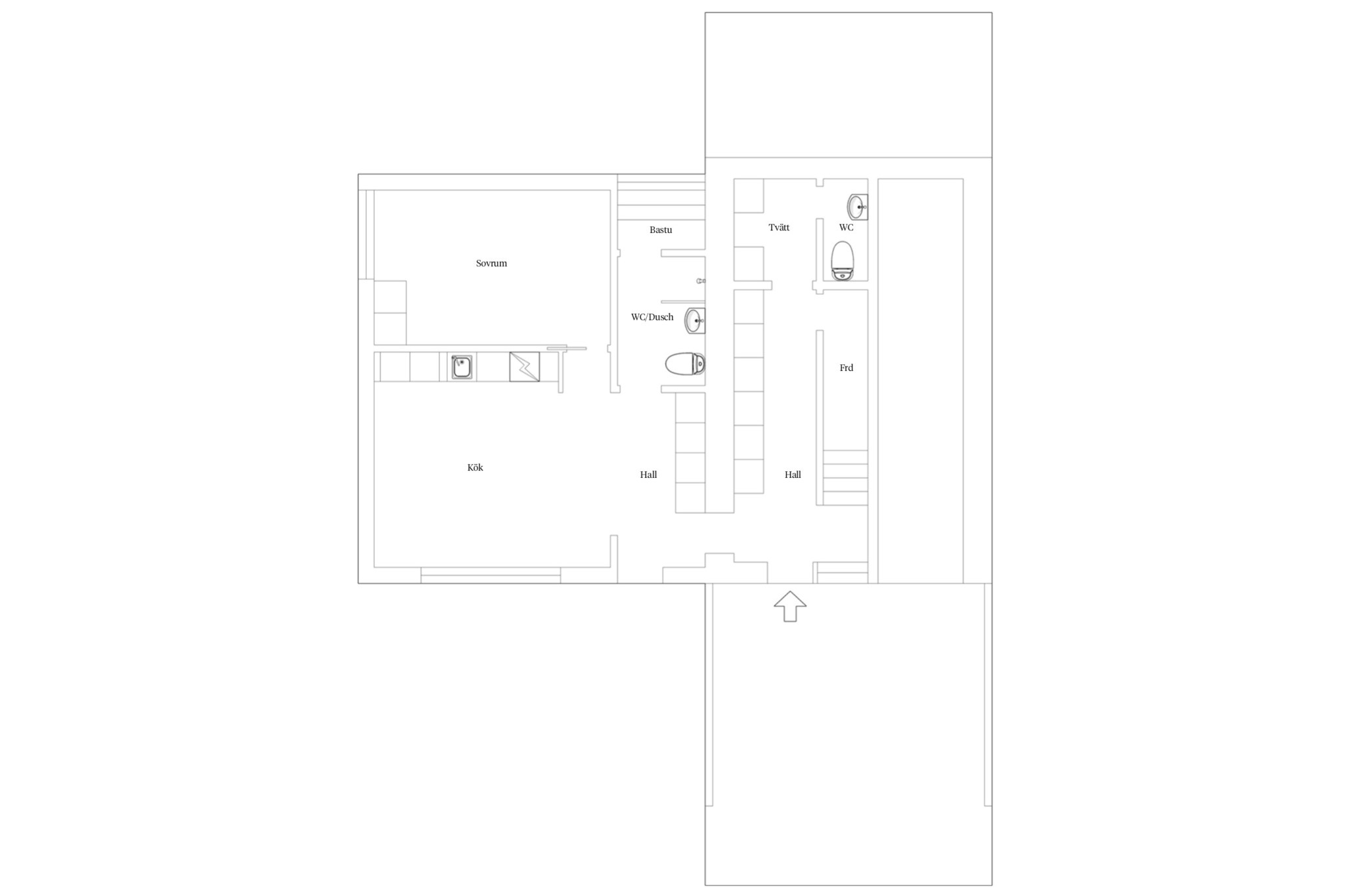
På nedre plan finns en separat gästlägenhet med eget allrum, fullt utrustat kök, sovrum och badrum med bastu – en genomtänkt och flexibel del som passar perfekt för gäster, äldre barn eller uthyrning. Hela huset är ritat för att fungera som en naturlig samlingsplats året runt, oavsett om dagarna fylls av vandring, jakt, cykel eller vintertid av pister, längdspår och skoterutflykter.

Ute erbjuder fastigheten en rymlig tomt om 1 356 kvm med förberedd plats för framtida garage.

Här finns totalt fyra sovrum, två badrum varav båda med bastu, gäst-wc, två kök, stora sällskapsytor på båda planen, öppen spis samt gott om plats för flera bilar. Det höga och soliga läget är både vackert och praktiskt – en miljö där Wingårdhs arkitektur låter naturen vara den självklara huvudpersonen.

Joakim Westerlind
Joakim Westerlind Ansvarig mäklare Ställ en fråga
Emil Dahlin Extra kontaktperson Ring mig Ställ en fråga

Visning

2025-11-29 12:00 - 12:30
Välkommen på vixning, anmälan krävs.

Vill du veta mer om bostaden?

Gör en intresseanmälan så kontaktar jag dig.

Joakim Westerlind
Joakim Westerlind Ansvarig mäklare Ställ en fråga
Emil Dahlin Extra kontaktperson Ring mig Ställ en fråga

Visning

2025-11-29 12:00 - 12:30
Välkommen på vixning, anmälan krävs.

Vill du veta mer om bostaden?

Gör en intresseanmälan så kontaktar jag dig.